Konversion Krankenhaus Sindelfingen

Text hier einfüge2025n

Machbarkeistuntersuchung

Verantwortlicher Partner:
Matthias Schuster

Vom Krankenhaus zum Wohnquartier
Beim Wohndialog der Stadt Sindelfingen am 6. November konnten wir den Fachkundigen aus der Immobilienwirtschaft unsere Machbarkeitsstudie für die Umwandlung des bisherigen Krankenhauses zu einem lebendigen Wohnstandort im zukünftigen Stadtquartier vorstellen.
Die Tragstruktur des Krankenhauses lässt eine überraschende Vielfalt unterschiedlicher Wohnformen und Wohnmodelle zu. Wir haben zwei Alternativen näher ausgearbeitet: Im „vertikalen Dorf“ sind die Wohnungen in übersichtlichen Einheiten um die zentralen Erschließungswege gruppiert. In der Mittelzone sind Treffpunkte und Funktionsbereiche als informelle Orte der Begegnung angeordnet.   
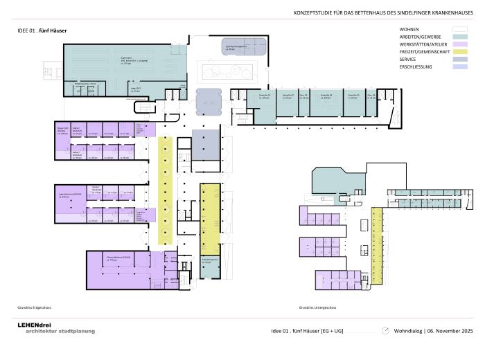
In den „fünf Häusern“ wird die große Baumasse des Krankenhauses in überschaubare Nachbarschaften gegliedert. Jeweils acht oder zwölf Wohnungen liegen an einem gemeinsamen Erschließungskern, dessen zwei- oder dreigeschossiger Luftraum die großzügig eingestreuten Treffpunkte verbindet. So entstehen übersichtliche und persönliche Nachbarschaften.
In den weiteren Schritten wird es darum gehen, die Konzepte weiter zu entwickeln und Organisationsstrukturen zur Umsetzung zu erarbeiten.
Das Vorhaben ist Teil der iba27 Stadtregion Stuttgart.